This one-story single-family home is South-facing and situated on a prominent corner lot on a quiet street in the Arcadia neighborhood within the Mayflower Village area. It offers a detached garage and a spacious yard that enhances curb appeal.
Located near schools, parks, restaurants, and supermarkets, the home is also close to Arcadia Golf Course, the public library, Arcadia County Park, Santa Anita Park and racetrack, The Shops at Santa Anita, the LA County Arboretum, and AMC theaters. Nearby hiking trails and recreational amenities provide additional outdoor options, along with easy access to major freeways and public transportation.
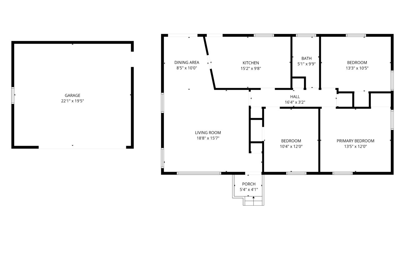
The home includes a living room, kitchen, dining room, laundry area, three bedrooms, and one bathroom, offering approximately 1,144 square feet of living space. Recent updates include a new permitted roof for both the house and garage, hardwood flooring, a new water heater, upgraded gas lines and valves, window blinds, front and back security doors, Ring doorbell, front step railings, and garage door weather seal.